Charmantes Friesenhaus in zurückgezogener Lage

Kaufpreis 3.650.000 €

Charmantes Friesenhaus in zurückgezogener Lage

Beschreibung

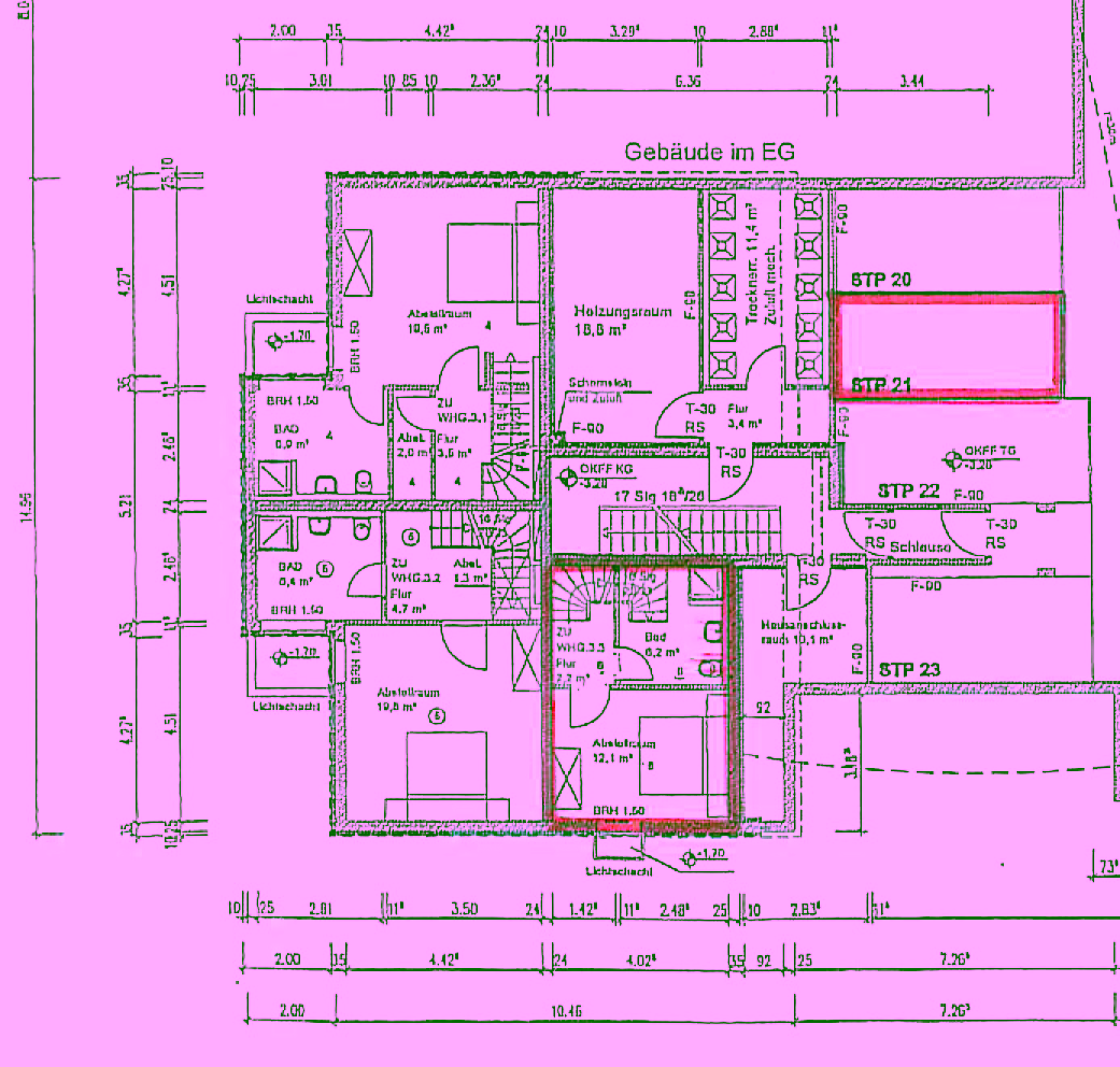
In einer ruhigen Ortslage von Archsum erstreckt sich auf einem etwa 1500 m² großen Grundstück ein charmantes Einfamilienhaus unter Reet mit zwei Wohneinheiten das höchsten Ansprüchen gerecht wird. Der schöne Garten ist nach Südwesten ausgerichtet, um die Sonne bis zum Sonnenuntergang genießen zu können. Die Wohn-/Nutzfläche beträgt ca. 263 m². Beide Einheiten sind identisch geschnitten und unterscheiden sich nur von der Größe. Wohnung 1 mit ca. 99,75 m², Wohnung 2 hat eine Größe von ca. 50 m². Eine Garage unter Reet gehört zu dieser Einheit. Kein Energieausweis vorhanden/in Vorbereitung

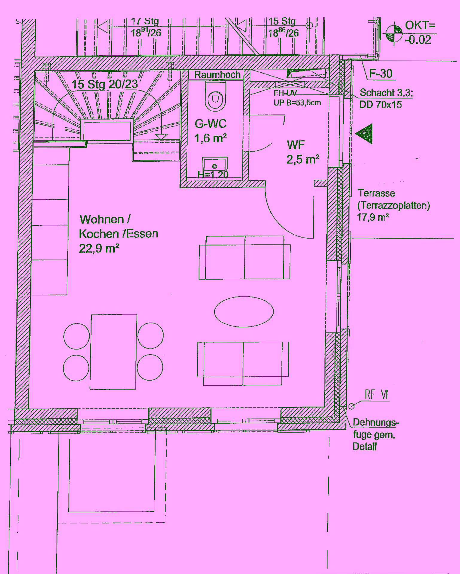
Im Erdgeschoss gelangen Sie über den Flur in den Wohn- und Essbereich mit einer separaten Küche und direktem Zugang zur Terrasse und in den großzügigen Garten. Ebenfalls befindet sich ein Gäste-WC auf dieser Etage. Im Obergeschoss finden Sie ein Schlafzimmer sowie ein helles Badezimmer. Im Untergeschoss erwarten Sie einen Raum zur individuellen Nutzung, eine Sauna, ein Gäste-WC und den Heizungsraum. Der Spitzboden bietet Ihnen einen weiteren Raum und ein weiteres Gäste-WC.

Daten und Fakten

Das Objekt im Detail

  • Objekt-ID
    2032
  • Objekttypen
    Einfamilienhaus, Haus
  • Adresse
    25980 Archsum
    Schleswig-Holstein
  • Wohnfläche ca.
    263 m²
  • Nutzfläche ca.
    113 m²
  • Gesamtfläche ca.
    263 m²
  • Grund­stück ca.
    1.500 m²
  • Zimmer
    8
  • Schlafzimmer
    6
  • Badezimmer
    4
  • Separate WC
    4
  • Terrassen
    2
  • Wesentlicher Energieträger
    Gas
  • Baujahr
    2001
  • Zustand
    gepflegt
  • Bauweise
    Massiv
  • Stellplätze
    2
  • Käufer­provision
    3,57 % inkl. MwSt.
  • Kaufpreis
    3.650.000 €

Weitere Merkmale

Alle Informationen im Detail

Im kleinsten Dorf der Insel erleben Sie ländliche Idylle und landwirtschaftliche Tradition. Auf saftigen und grünen Wiesen weiden Schafe, ein kleiner Bach schlängelt sich durch die Landschaft und gelbe Rapsfelder leuchten in den Frühlingshimmel. Das Leben hier wird noch bestimmt vom Rhythmus der Natur und alten Bräuchen wie dem Biikebrennen im Februar und dem Ringreiten im Sommer. Alte historische Höfe thronen auf ihren Warften und reetgedeckte Friesenhäuser fügen sich harmonisch in das Dorfbild ein. Hier ist viel Platz für weite Blicke und ausgiebige Radtouren durch Salzwiesen und entlang des Deiches. Die Natur gibt den Rhythmus vor. Archsum ist der grüne Ruhepol der Insel.

Im Erdgeschoss gelangen Sie über den Flur in den Wohn- und Essbereich mit einer separaten Küche und direktem Zugang zur Terrasse und in den großzügigen Garten. Ebenfalls befindet sich ein Gäste-WC auf dieser Etage.

Im Obergeschoss finden Sie ein Schlafzimmer sowie ein helles Badezimmer.

Im Untergeschoss erwarten Sie einen Raum zur individuellen Nutzung, eine Sauna, ein Gäste-WC und den Heizungsraum.

Der Spitzboden bietet Ihnen einen weiteren Raum und ein weiteres Gäste-WC.

  • ✓ Gäste-WC
  • ✓ Keller
  • ✓ Massivbauweise
  • ✓ Separates WC
  • ✓ Stellplatz
  • ✓ Terrasse

Peter Peters

Ich freue mich, Ihnen diese besondere Immobilie zeigen zu können. Bei Fragen kontaktieren Sie mich gerne.

Direktanfrage

* Pflichtangaben
 SSL-verschlüsselt