Schöne Doppelhaushälfte im Frischwassertal

Kaufpreis 2.150.000 €

Schöne Doppelhaushälfte im Frischwassertal

Beschreibung

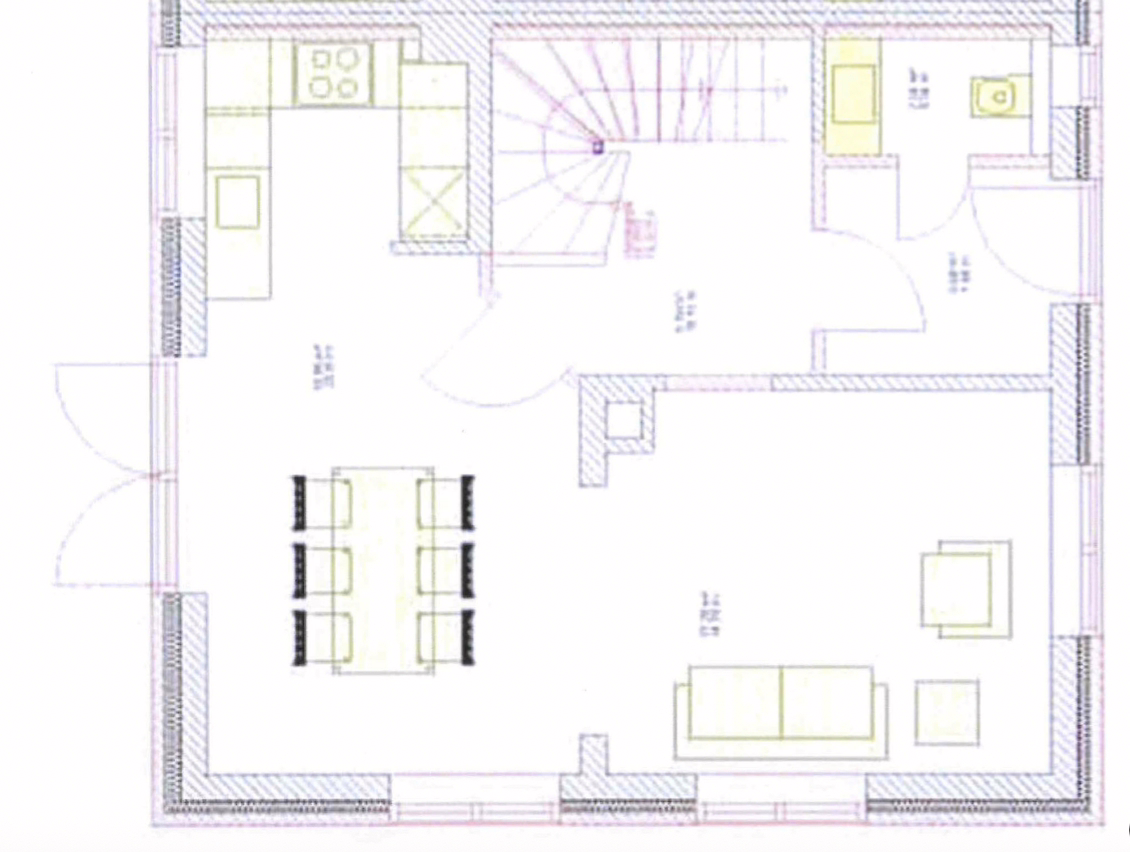
Im Erdgeschoss gelangen Sie über einen Windfang mit Gäste-WC in die großzügige helle Diele. Hierüber gelangen Sie in den gemütlichen Wohn-/Essbereich mit angrenzender Küche und einem Austritt auf die schöne Terrasse. Hier können Sieden ganzen Tag die Sonne genießen und den Abend ausklingen lassen. Das Obergeschoss verfügt über zwei Schlafzimmer und ein Badezimmer. Eine weitere Holztreppe führt in den Spitzboden. Hier erwarten Sie einen weiteren Raum zu individuellen Nutzung.

Daten und Fakten

Das Objekt im Detail

  • Objekt-ID
    2192
  • Objekttypen
    Doppelhaushälfte, Haus
  • Adresse
    25992 List
    Schleswig-Holstein
  • Wohnfläche ca.
    110 m²
  • Nutzfläche ca.
    110 m²
  • Gesamtfläche ca.
    110 m²
  • Grund­stück ca.
    335 m²
  • Zimmer
    3
  • Schlafzimmer
    2
  • Badezimmer
    1
  • Separate WC
    1
  • Terrassen
    1
  • Baujahr
    1935
  • Käufer­provision
    3,57 % inkl. MwSt.
  • Kaufpreis
    2.150.000 €

Weitere Merkmale

Alle Informationen im Detail

List ist nicht nur der nördlichste Punkt der Insel, sondern auch in Deutschland. Die wunderschöne Landschaft besticht durch weite Dünengürtel, Heideflächen und lange Strände. Das Listland ist von überwiegend halmbewachsenen Dünen geprägt. Im Laufe der vergangenen Jahrhunderte hat der Westwind immer mehr Sand angeweht. Man kann sich dort ein wunderbares Bild von den sandigen Weiten des 1932 unter Naturschutz gestellten Gebietes von Nord-Sylt machen, das den bezeichnenden Spitznamen „Sylter Sahara“ trägt. Hier im Norden der Insel befindet sich ein vom Tourismus noch nicht entdeckter phantastischer Sandstrand.
Die beiden Meere sind in wenigen Augenblicken fußläufig erreichbar und der Königshafen gilt als ideales Revier für Windsurfer. Die Weite des Naturschutzgebietes lädt zu ausgiebigen Spaziergängen ein, der Ortskern bietet neben kulinarischen Vielfältigkeiten, Shoppingmöglichkeiten für Jedermann und der Hafen lockt mit seinem Erlebniszentrum „Naturgewalten“, den im Hafenbecken liegenden Segelyachten, Fischkuttern sowie Fähr- und Ausflugsschiffen. Die Alte Tonnenhalle war schon früher ein aktiver Teil des Lister Hafenbetriebes und als solcher aus dem Gesamtbild des Hafens nicht wegzudenken.

Im Erdgeschoss gelangen Sie über einen Windfang mit Gäste-WC in die großzügige helle Diele.

Hierüber gelangen Sie in den gemütlichen Wohn-/Essbereich mit angrenzender Küche und einem Austritt auf die schöne Terrasse.
Hier können Sieden ganzen Tag die Sonne genießen und den Abend ausklingen lassen.

Das Obergeschoss verfügt über zwei Schlafzimmer und ein Badezimmer.

Eine weitere Holztreppe führt in den Spitzboden. Hier erwarten Sie einen weiteren Raum zu individuellen Nutzung.

  • ✓ Separates WC
  • ✓ Terrasse

Peter Peters

Ich freue mich, Ihnen diese besondere Immobilie zeigen zu können. Bei Fragen kontaktieren Sie mich gerne.

Direktanfrage

* Pflichtangaben
 SSL-verschlüsselt