Liebevoll sanierte Haushälfte unter Reet in Keitum mit einer Garage

Kaufpreis 2.295.000 €

Liebevoll sanierte Haushälfte unter Reet in Keitum mit einer Garage

Beschreibung

Auf einem ca. 412 m² großen Grundstück befindet sich diese sanierte Haushälfte. Der inseltypisch gestaltete Garten mit attraktiven Friesenwällen rundet das harmonische Gesamtbild ab. Der Grundriss ist durchdacht konzipiert, sodass eine gemütliche, stimmige Atmosphäre entsteht Kein Energieausweis vorhanden/in Vorbereitung

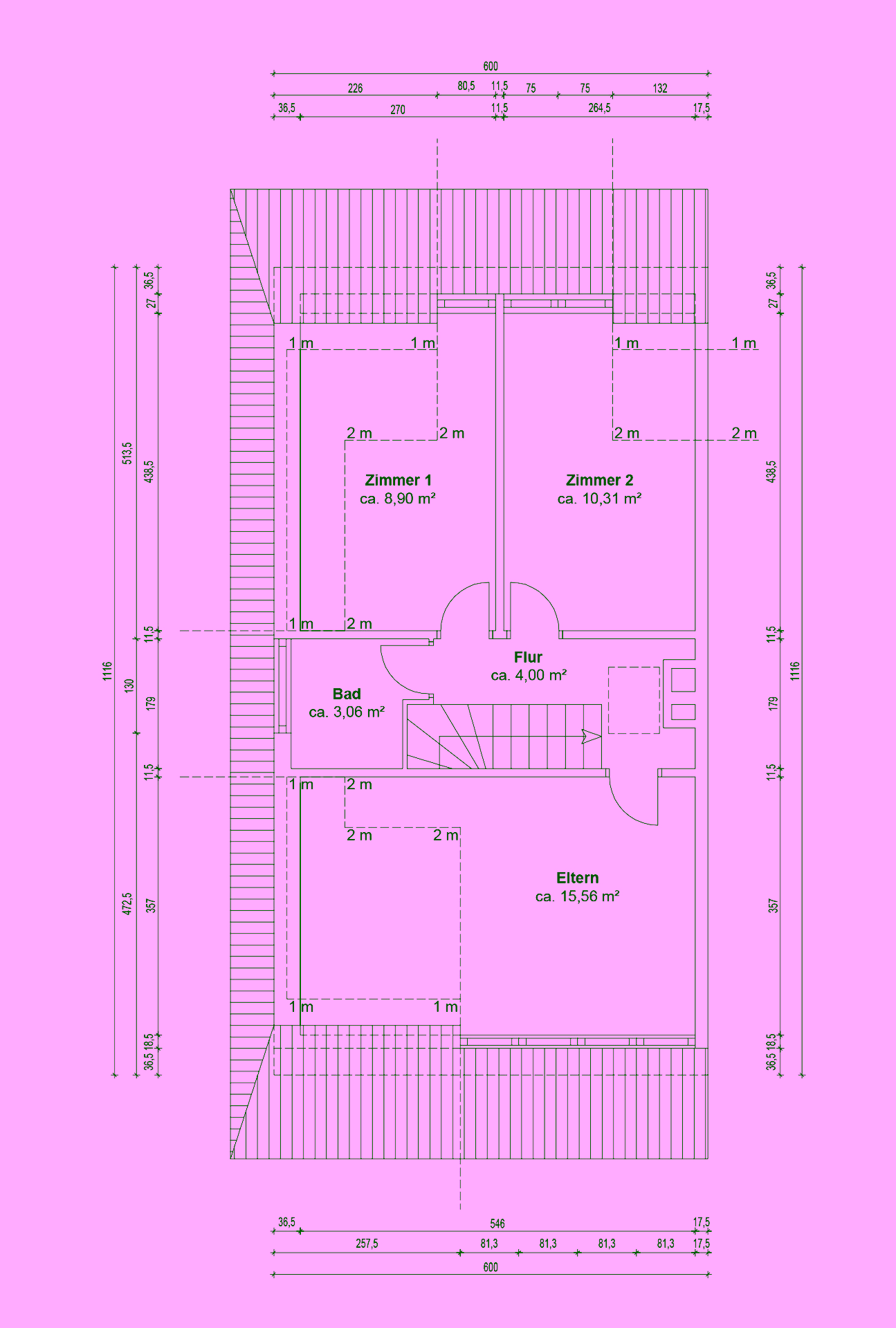
Im Erdgeschoss befindet sich das Wohnzimmer mit Gas-Kamin, eine separate Küche, ein Gäste-Bad und der Heizungsraum. Das Obergeschoss verfügt über drei Schlafzimmer und ein Duschbad. Im Spitzboden finden Sie einen weiteren Raum zur freien Verfügung. Zur Haushälfte gehört eine kleine Garage. Eine Besichtigung des Grundstück ist nur nach vorheriger Terminabsprache zwischen uns möglich.

Daten und Fakten

Das Objekt im Detail

  • Objekt-ID
    1910
  • Objekttypen
    Doppelhaushälfte, Haus
  • Adresse
    25980 Keitum
    Schleswig-Holstein
  • Etagen im Haus
    3
  • Wohnfläche ca.
    120 m²
  • Gesamtfläche ca.
    120 m²
  • Grund­stück ca.
    412 m²
  • Zimmer
    5
  • Schlafzimmer
    3
  • Badezimmer
    1
  • Terrassen
    1
  • Baujahr
    1972
  • Zustand
    teil-/vollsaniert
  • Bauweise
    Massiv
  • Käufer­provision
    3,57 % inkl. MwSt.
  • Kaufpreis
    2.295.000 €

Weitere Merkmale

Alle Informationen im Detail

In Keitum lebt die Tradition: klassische Kapitänshäuser, romantische Gärten und viel Grün. Keitum hat sich seine dörfliche Idylle erhalten und gewinnt von Jahr zu Jahr mehr Bedeutung bei allen Syltliebhabern. Egal wo Sie vor die Tür treten, es ist immer ein außergewöhnlicher Anblick, der sich Ihnen bietet: Baumalleen, wie sie sonst kaum auf Sylt zu finden sind oder das Wattenmeer mit dem reflektierenden Sonnenlicht oder aber die üppige Vegetation in den schön angelegten Friesengärten.
Wer Romantik liebt und dabei auf kulturelle und gastronomische Abwechslung Wert legt, ist hier bestens aufgehoben.
Es versteht sich fast von selbst, dass jedes hier angebotene Domizil eine wahre Perle ist.

Im Erdgeschoss befindet sich das Wohnzimmer mit Gas-Kamin, eine separate Küche, ein Gäste-Bad und der Heizungsraum.

Das Obergeschoss verfügt über drei Schlafzimmer und ein Duschbad.

Im Spitzboden finden Sie einen weiteren Raum zur freien Verfügung.

Zur Haushälfte gehört eine kleine Garage.

Eine Besichtigung des Grundstück ist nur nach vorheriger Terminabsprache zwischen uns möglich.

  • ✓ Kamin
  • ✓ Massivbauweise
  • ✓ Terrasse

Peter Peters

Ich freue mich, Ihnen diese besondere Immobilie zeigen zu können. Bei Fragen kontaktieren Sie mich gerne.

Direktanfrage

* Pflichtangaben
 SSL-verschlüsselt