Seltenes Baugrundstück mit Alt-Bestand in Westerland

Kaufpreis 1.995.000 €

Seltenes Baugrundstück mit Alt-Bestand in Westerland

Beschreibung

Willkommen zu einer einzigartigen Gelegenheit in der charmanten Stadt Westerland auf Sylt. Dieses Baugrundstück mit Altbestand befindet sich in einer begehrten, zentrumsnahen Lage, nur wenige Gehminuten von der pulsierenden Friedrichstraße und dem malerischen Strand entfernt. Diese erstklassige Lage bietet Ihnen die perfekte Mischung aus Ruhe und Zentralität – ein seltener Fund auf der beliebten Nordseeinsel. Kein Energieausweis vorhanden / in Vorbereitung.

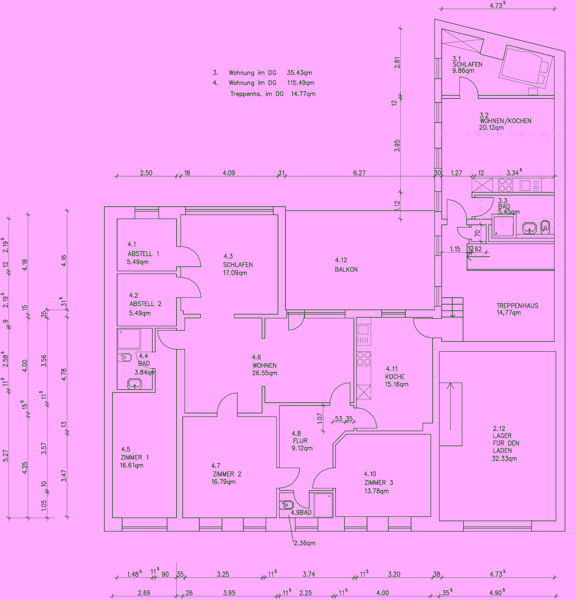
Das Grundstück verfügt über einen positiven Bauvorbescheid, der den Bau eines neuen Gebäudes mit zwei Dauerwohnungen und vier Ferienwohnungen erlaubt. Diese Genehmigung eröffnet eine Vielzahl von Nutzungsmöglichkeiten und verspricht ein attraktives Investmentpotential. Die GRZ beträgt 0,47 und die GFZ 1,62.

Daten und Fakten

Das Objekt im Detail

  • Objekt-ID
    1985
  • Objekttypen
    Grundstück, Wohngrundstück
  • Adresse
    25980 Westerland
    Schleswig-Holstein
  • Wohnfläche ca.
    750 m²
  • Nutzfläche ca.
    750 m²
  • Gesamtfläche ca.
    750 m²
  • Grund­stück ca.
    540 m²
  • Grundflächenzahl
    0.47
  • Geschoss­flä­chen­zahl
    1,62
  • Zimmer
    20
  • Erschließung
    vollerschlossen
  • Bauweise
    Massiv
  • Käufer­provision
    3,57 % inkl. MwSt.
  • Kaufpreis
    1.995.000 €

Weitere Merkmale

Alle Informationen im Detail

Westerland ist ein Ortsteil der Gemeinde Sylt und Hauptort der Nordseeinsel.
Erleben Sie entspannte Strandtage am acht Kilometer langen Sandstrand. Wenige Meter hinter dem Strand treffen Sie auf die Fußgängerzone von Westerland, wo Sie in Boutiquen und Designerläden nach Herzenslust einkaufen können. Auch das Nachtleben hat Etliches zu bieten und in der Musikmuschel an der Strandpromenade finden den ganzen Sommer über Konzerte und Aufführungen statt. Jede Jahreszeit steht im Zeichen eines kulturellen, gastronomischen, sportlichen oder musikalischen Highlights, vom Windsurf World Cup bis zur Silvestergala.
Lernen Sie das Sylter Aquarium kennen, wo sich dem Besucher verschiedene Unterwasserwelten aus allen Weltmeeren offenbaren. Zu Ihrem Urlaub in Westerland gehört ebenfalls ein Besuch im Freizeitbad mit Saunawelt Sylter Welle. Bei schlechtem Wetter genießen Sie den Tag im modernen Syltness Center, wo Körper und Geist bei Asia-Wellness, Thalasso-Therapien und Schönheitsbehandlungen verwöhnt werden.

Das Grundstück verfügt über einen positiven Bauvorbescheid, der den Bau eines neuen Gebäudes mit zwei Dauerwohnungen und vier Ferienwohnungen erlaubt. Diese Genehmigung eröffnet eine Vielzahl von Nutzungsmöglichkeiten und verspricht ein attraktives Investmentpotential.

Die GRZ beträgt 0,47 und die GFZ 1,62.

  • ✓ Massivbauweise

Peter Peters

Ich freue mich, Ihnen diese besondere Immobilie zeigen zu können. Bei Fragen kontaktieren Sie mich gerne.

Direktanfrage

* Pflichtangaben
 SSL-verschlüsselt