Doppelhaushälfte
| Art: | Haus |
|---|---|
| Ort: | Rantum |
| Gesamtfläche: | ca. 165 m² |
|---|---|
| Grundstück: | ca. 715 m² |
| Zimmer: | 6 |
| Energieausweis: | in Vorbereitung |
|---|---|
| Endenergiebedarf: | |
| Energieträger: | Luft/Wasser Wärmepumpe |
| Baujahr: | 2022 |
| PREIS: | 2.795.000,00 € |
|---|
Genehmigtes Ferienhaus nur ein Steinwurf vom Weststrand in Rantum entfernt
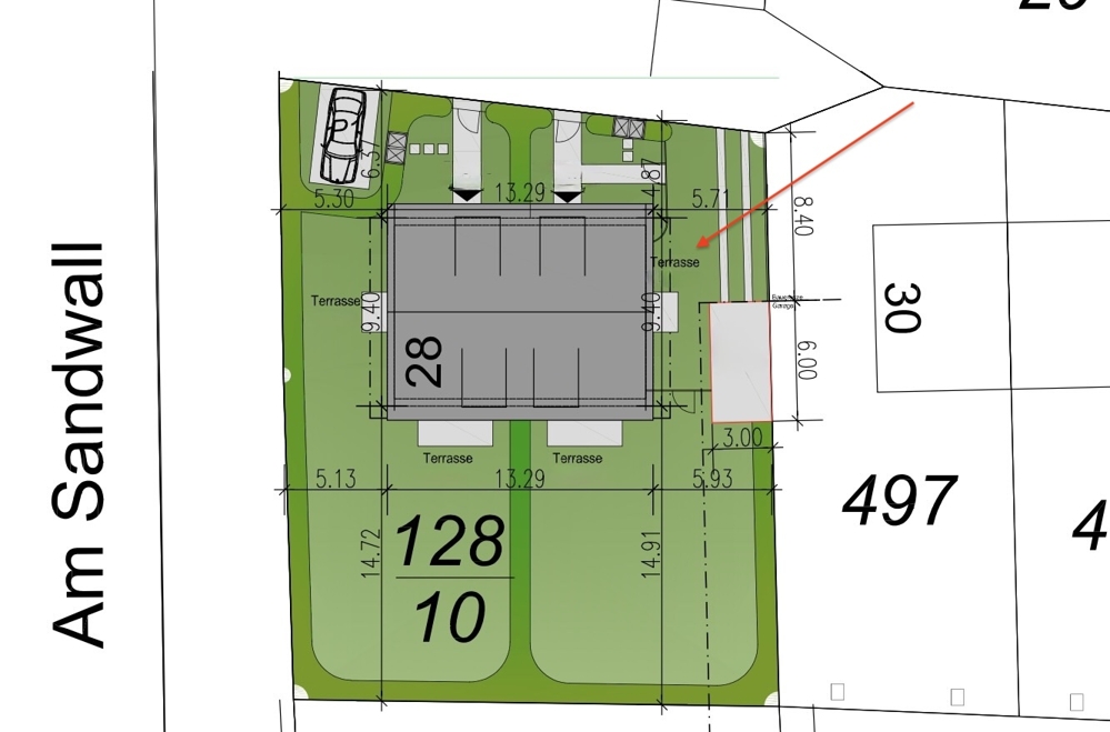
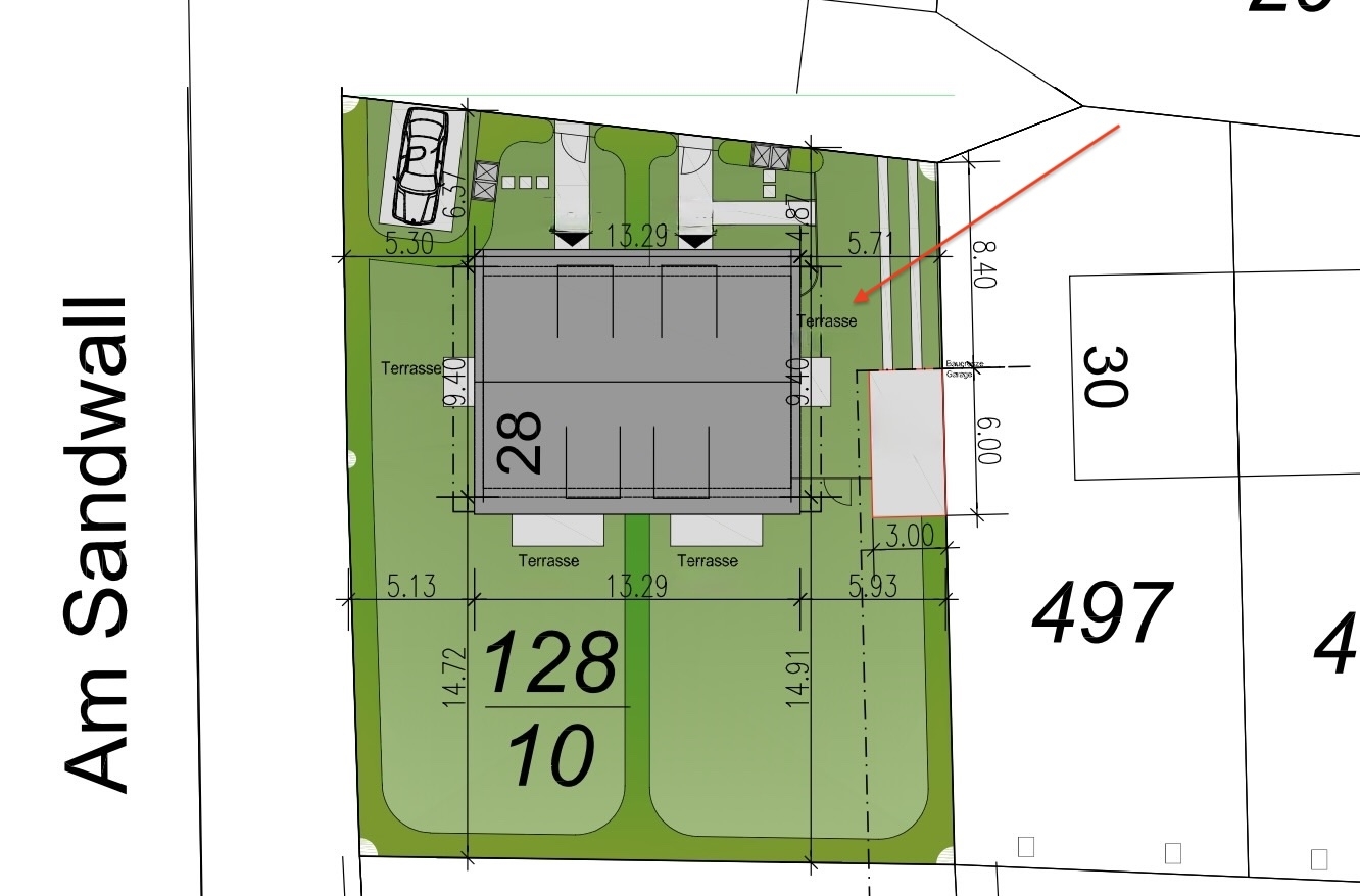
Direkt hinter den Rantumer Dünen steht auf einem Grundstück von ca. 715 m² ein modernes Doppelhaus. Die Haushälfte ist als Ferienhaus genehmigt und liegt traumhaft – nur wenige Schritte vom Strand und dem Söl'ring Hof entfernt. Die Ausstattung ist hochwertig und ansprechend. Zu der Einheit gehört ein Außenstellplatz sowie eine Garage. Die Haushälfte besitzt ein eigenes Grundbuchblatt und ist nach WEG von der rechten Haushälfte geteilt. Kaufpreis der Ferienhaushälfte: 2.950.000,– € brutto / 2.795.000,– € netto Kein Energieausweis vorhanden / in Vorbereitung.
AUSSTATTUNG
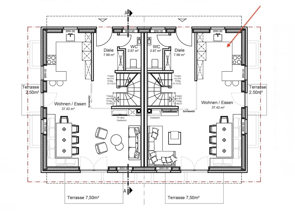
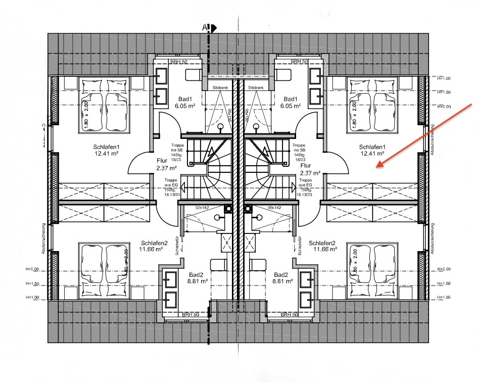
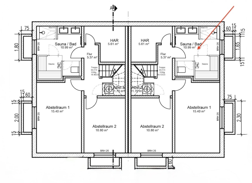
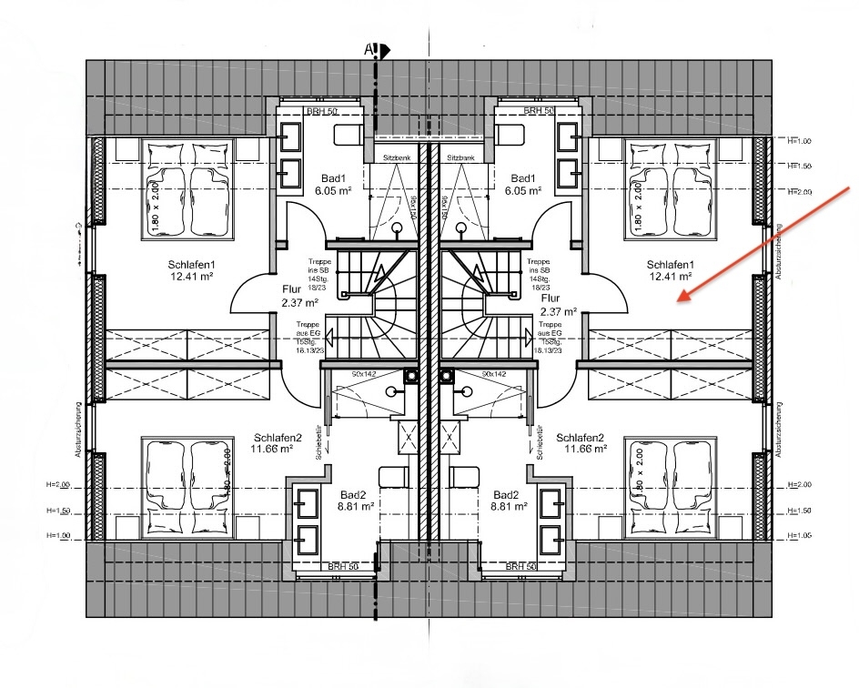
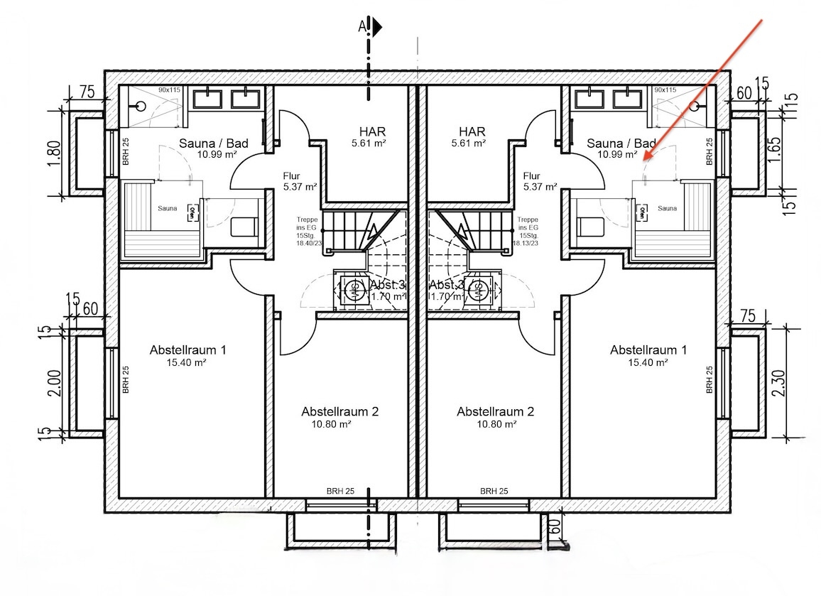
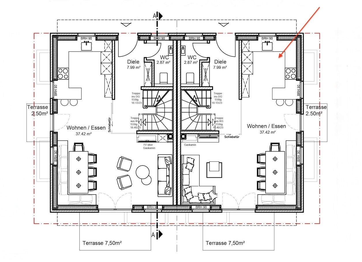
Im Erdgeschoss empfängt Sie eine einladende Diele mit Garderobe und Gäste-WC. Von hier gelangen Sie in das Treppenhaus, von dem Sie das Obergeschoss sowie den Keller erreichen. Geradeaus betreten Sie das helle Wohn- und Esszimmer mit einer modernen Küche. Der Austritt auf die Südterrasse mit dem großzügigen Garten und dem einzigartigen Blick auf die Dünenlandschaft rundet diese Etage ab. Im Obergeschoss finden Sie zwei Schlafräume, jeweils mit einem großzügigen Bad mit Dusche und Blick auf die Dünen. Im ausgebauten Spitzboden befindet sich ein weiterer Raum zur individuellen Nutzung. Das Untergeschoss unterteilt sich in zwei individuell nutzbare Räume, einen schönen Wellnessbereich mit Sauna, Duschbad und WC. Der Haustechnik-/Heizungsraum bietet Platz für eine Waschmaschine. Das Haus wird inklusive Mobiliar verkauft. Die hochwertigen Einbauten, die Garage und ein Gartenhaus sind ebenfalls bereits im Kaufpreis enthalten.












































LAGE
Nirgendwo auf Sylt kommen sie sich näher: In Rantum rücken Watt und Westküste ganz eng zusammen. Das 741 Hektar kleine Rantum ist der stille Star im Sylter Verbund, liebt das Understatement und gibt sich sympathisch uneitel, trotz herausragender Stärken. Kenner wissen: Rantum ist sehr viel mehr als nur das dörfliche Vorspiel für die legendäre „Sansibar“. Rantum ist der schmalste Ortsteil der Insel, wären da nicht die Dünen, könnte man das Meer von beiden Seiten erleben. Auch hier ballt sich die Natur in unterschiedlichsten Facetten. Die Wege sind nie weit, alles ist fußläufig erreichbar.
ICH INTERESSIERE MICH FÜR DIESES ANGEBOT:
Genehmigtes Ferienhaus nur ein Steinwurf vom Weststrand in Rantum entfernt
Meine Kontaktdaten