



































Doppelhaushälfte
Art: | Haus |
---|---|
Ort: | Wenningstedt |
Gesamtfläche: | ca. 138 m² |
---|---|
Grundstück: | ca. 951 m² |
Zimmer: | 5 |
Energieausweis: | in Vorbereitung |
---|---|
Endenergiebedarf: | |
Energieträger: | Luft/Wasser Wärmepumpe |
Baujahr: | 2015 |
PREIS: | 2.950.000,00 € |
---|
Charmante reetgedeckte Ferienhaushälfte in toller Lage von Wenningstedt
Charmante Reetdach-Ferienhaushälfte in strandnaher Lage von Wenningstedt. Das Haus steht auf einem großzügigen Grundstück von ca. 951 m² und bietet mit ca. 138 m² Gesamtfläche ein durchdachtes Raumkonzept auf mehreren Ebenen. Auf fünf stilvoll gestaltete Zimmer verteilt, spürt man überall die Liebe zum Detail und die hochwertige Ausstattung. Diese Reetdach-Doppelhaushälfte steht für das, was Wohnen auf Sylt so einzigartig macht: ein stilvolles Zuhause in strandnaher Lage, umgeben von Natur, Komfort und der beruhigenden Nähe zum Meer. Kein Energieausweis vorhanden/in Vorbereitung
AUSSTATTUNG
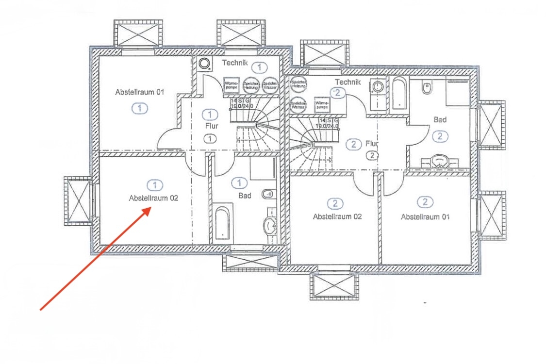
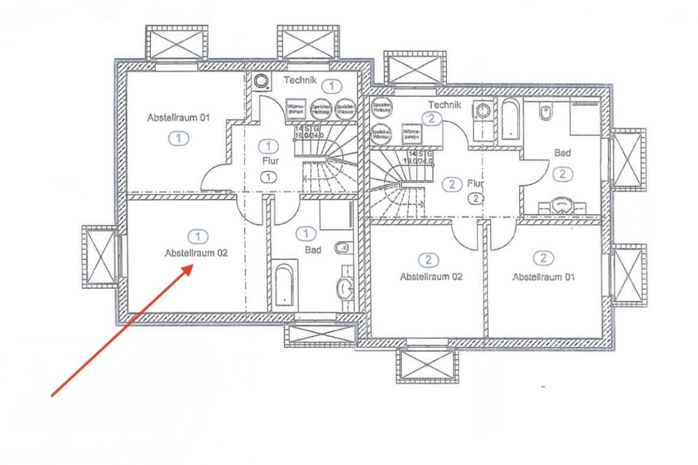
In begehrter und ruhiger Lage von Wenningstedt präsentiert sich diese charmante Reetdach-Doppelhaushälfte als ein echtes Sylter Refugium.. Nur wenige Schritte vom Strand entfernt, verbindet sie traditionelle Architektur mit modernster Technik und Im Erdgeschoss empfängt eine großzügige Diele mit Gäste-WC die Bewohner und Gäste. Der fließende Übergang führt in das helle Wohn- und Esszimmer mit offener Küche, das durch seine Großzügigkeit und Gemütlichkeit besticht. Die hochwertige Küche ist mit einer Keramikarbeitsplatte und einem Weinkühlschrank ausgestattet – ideal für gesellige Abende. Von hier aus öffnet sich der Zugang zur Südterrasse mit einem schön eingewachsenen Garten, der Privatsphäre und sonnige Stunden im Freien garantiert. Im Obergeschoss befindet sich der Master Bedroom mit begehbarem Kleiderschrank und einem herrlichen Blick auf das Meer – ein Rückzugsort von besonderem Charme. Ergänzt wird diese Ebene durch ein weiteres Schlafzimmer und ein geschmackvolles Duschbad mit hochwertigen Materialien. Der Spitzboden bietet einen weiteren Raum zur individuellen Nutzung, ebenfalls mit Meerblick. Im Untergeschoss setzt sich die exklusive Ausstattung fort: Hier finden sich ein zusätzlicher, flexibel nutzbarer Raum, ein Ankleidezimmer sowie eine finnische KLAFS-Sauna mit Sanarium-Funktion. Ein weiteres Duschbad rundet diesen Wohlfühlbereich ab. Alle Wohnräume sind mit edlem Eichenparkett ausgestattet, die Bäder mit sandfarbenem Travertin-Stein. Die Fußbodenheizung im gesamten Haus sorgt ganzjährig für angenehme Wärme. Als Energiequelledient eine effiziente Luft-Wasser-Wärmepumpe, die Nachhaltigkeit und zeitgemäßen Wohnkomfort vereint. Zu der Haushälfte gehört ein Pkw-Außenstellplatz. Dieses Wohnobjekt vereint Luxus, Komfort und Nachhaltigkeit und bietet Ihnen ein Wohnambiente von höchster Qualität. Erfüllen Sie sich Ihren Traum vom exklusiven Wohnen in einer Umgebung, die keine Wünsche offen lässt.




































LAGE
Seit 1859 ist Wenningstedt Seebad, seit 1960 Nordseeheilbad. Für Ausflüge und Besichtigungen ist man immer nah am Geschehen, nur ein Katzensprung ins mondäne Kampen und ein kurzer Fußmarsch ins Zentrum Westerlands. Wenningstedt liegt südlich von Kampen und nördlich von Westerland am Rande einer Dünenlandschaft auf dem Roten Kliff. Unterhalb des Kliffs erstreckt sich ein Sandstrand, der insbesondere im Sommer als bewachter Badestrand die Haupt-Touristenattraktion ist. Die Kurpromenade mit dem Kursaal verspricht modernes Entertainment für alle Generationen. Das Herzstück Wenningstedts ist der idyllische Dorfteich mit seiner am Ufer gelegenen Friesenkapelle. Der beliebte Supermarkt "Feinkost-Meyer" sowie das berühmte Fischrestaurant "Gosch am Kliff" sorgen neben weiteren zahlreichen gehobenen Gastronomiebetrieben für Ihr leibliches Wohl.
ICH INTERESSIERE MICH FÜR DIESES ANGEBOT:
Charmante reetgedeckte Ferienhaushälfte in toller Lage von Wenningstedt
Meine Kontaktdaten