





















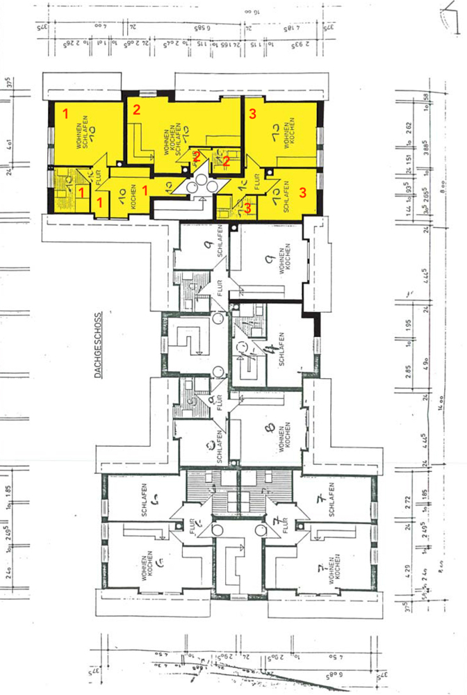
Dachgeschoss
Art: | Wohnung |
---|---|
Ort: | Westerland |
Gesamtfläche: | ca. 49 m² |
---|---|
Grundstück: | ca. 1.644 m² |
Zimmer: | 2 |
Energieausweis: | Verbrauchsausweis |
---|---|
Endenergiebedarf: | |
Energieträger: | Gas |
Baujahr: | 1986 |
PREIS: | 448.000,00 € |
---|
Schnuckelige Dachgeschosswohnungen unter Reet in strandnaher Lage von Westerland
Die Obergeschosswohnung befindet sich in einem reetgedeckten Ensemble in Stadt- und strandnaher Lage von Westerland. Über den östlichen Eingang gelangen Sie in das Dachgeschoss in dem sich die bezaubernde Wohnung befindet. Zwei Waschmaschinen und ein Trockner stehen im Waschraum, der sich im Keller befindet, zur Verfügung. Für jede Wohnung ist ein Stellplatz vorhanden. Im Garten sind auf einem mit einer Hecke abgetrennten Terrassenplatz drei Strandkörbe, die saisonal aufgestellt werden, zur gemeinschaftlichen Nutzung vorhanden.
AUSSTATTUNG
Die charmante Wohnung liegt im ersten Obergeschoss und bietet ein lichtdurchflutetes Wohnzimmer mit integrierter Einbauküche. Die Einbauküche verfügt über einen Geschirrspüler, einen Kühlschrank mit Gefrierfach und einem Induktionsherd. Ein Duschbad befindet sich ebenfalls auf dieser Ebene. Über die Treppe im Wohnzimmer gelangen Sie in den ausgebauten Spitzboden zur individuellen Nutzung. Im letzten Jahr erhielt die Wohnung neue Fenster und moderne Heizkörper mit Smart-Home-Unterstützung, sodass Sie bequem von unterwegs nach Ihren Vorlieben die Heizung steuern können. Das Reetdach wurde vor 3 Jahren an der Ostseite erneuert.






















LAGE
Westerland ist ein Ortsteil der Gemeinde Sylt und Hauptort der Nordseeinsel. Erleben Sie entspannte Strandtage am acht Kilometer langen Sandstrand. Wenige Meter hinter dem Strand treffen Sie auf die Fußgängerzone von Westerland, wo Sie in Boutiquen und Designerläden nach Herzenslust einkaufen können. Jede Jahreszeit steht im Zeichen eines kulturellen, gastronomischen, sportlichen oder musikalischen Highlights, vom Windsurf World Cup bis zur Silvestergala. Lernen Sie das Sylter Aquarium kennen, wo sich dem Besucher verschiedene Unterwasserwelten aus allen Weltmeeren offenbaren. Zu Ihrem Urlaub in Westerland gehört ebenfalls ein Besuch im Freizeitbad mit Saunawelt Sylter Welle. Bei schlechtem Wetter genießen Sie den Tag im modernen Syltness Center, wo Körper und Geist bei Asia-Wellness, Thalasso-Therapien und Schönheitsbehandlungen verwöhnt werden.
ICH INTERESSIERE MICH FÜR DIESES ANGEBOT:
Schnuckelige Dachgeschosswohnungen unter Reet in strandnaher Lage von Westerland
Meine Kontaktdaten