






































Doppelhaushälfte
Art: | Haus |
---|---|
Ort: | List |
Gesamtfläche: | ca. 110 m² |
---|---|
Grundstück: | ca. 335 m² |
Zimmer: | 3 |
Energieausweis: | in Vorbereitung |
---|---|
Endenergiebedarf: | |
Energieträger: | |
Baujahr: | 1935 |
PREIS: | 2.150.000,00 € |
---|
Schöne Doppelhaushälfte im Frischwassertal
Auf einem 335 m² großen Grundstück im Frischwassertal finden sie diese ursprüngliche Marinehaushälfte unter Reet. Mit ca. 110 m² Gesamtfläche bietet diese Immobilie ausreichend Platz und Rückzugsmöglichkeiten für die Familie. Kein Energieausweis vorhanden / in Vorbereitung
AUSSTATTUNG
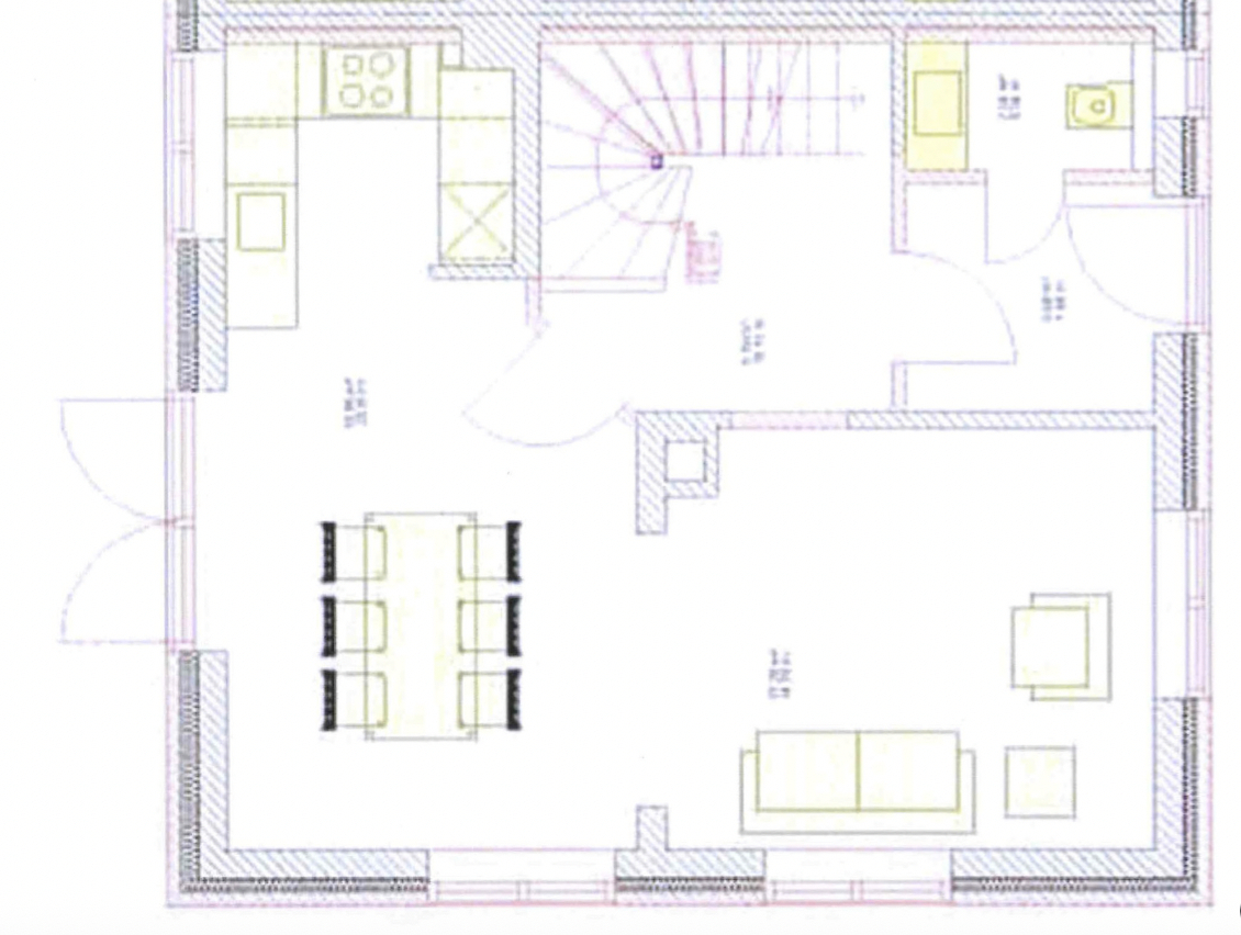
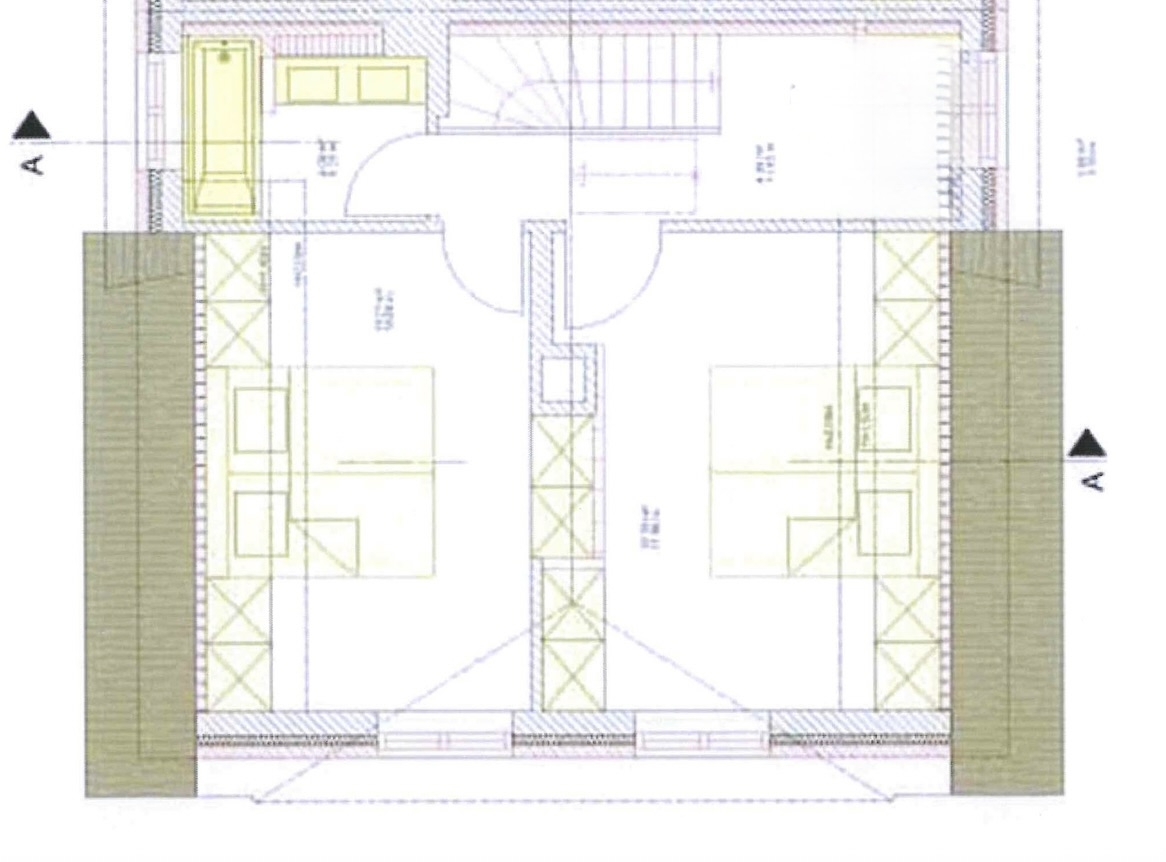
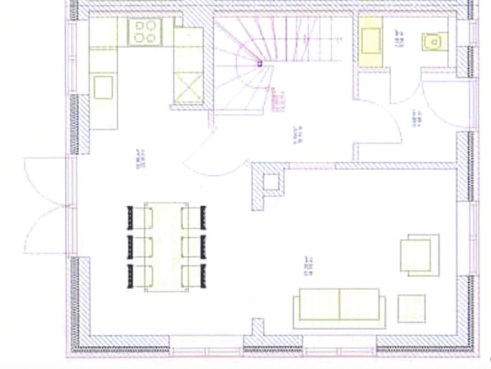
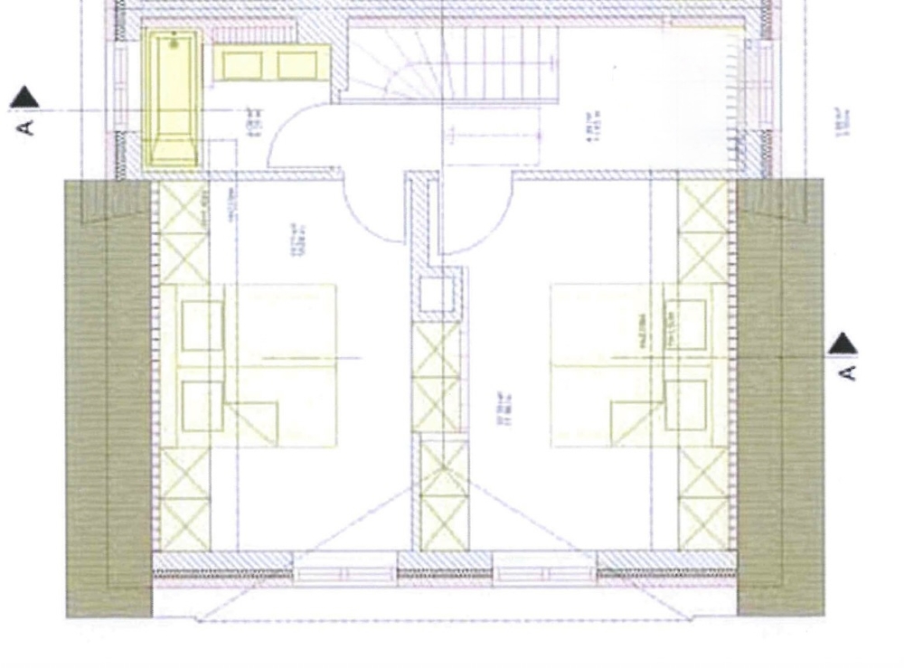
Im Erdgeschoss gelangen Sie über einen Windfang mit Gäste-WC in die großzügige helle Diele. Hierüber gelangen Sie in den gemütlichen Wohn-/Essbereich mit angrenzender Küche und einem Austritt auf die schöne Terrasse. Hier können Sieden ganzen Tag die Sonne genießen und den Abend ausklingen lassen. Das Obergeschoss verfügt über zwei Schlafzimmer und ein Badezimmer. Eine weitere Holztreppe führt in den Spitzboden. Hier erwarten Sie einen weiteren Raum zu individuellen Nutzung.







































LAGE
List ist nicht nur der nördlichste Punkt der Insel, sondern auch in Deutschland. Die wunderschöne Landschaft besticht durch weite Dünengürtel, Heideflächen und lange Strände. Das Listland ist von überwiegend halmbewachsenen Dünen geprägt. Im Laufe der vergangenen Jahrhunderte hat der Westwind immer mehr Sand angeweht. Man kann sich dort ein wunderbares Bild von den sandigen Weiten des 1932 unter Naturschutz gestellten Gebietes von Nord-Sylt machen, das den bezeichnenden Spitznamen „Sylter Sahara“ trägt. Hier im Norden der Insel befindet sich ein vom Tourismus noch nicht entdeckter phantastischer Sandstrand. Die beiden Meere sind in wenigen Augenblicken fußläufig erreichbar und der Königshafen gilt als ideales Revier für Windsurfer. Die Weite des Naturschutzgebietes lädt zu ausgiebigen Spaziergängen ein, der Ortskern bietet neben kulinarischen Vielfältigkeiten, Shoppingmöglichkeiten für Jedermann und der Hafen lockt mit seinem Erlebniszentrum „Naturgewalten“, den im Hafenbecken liegenden Segelyachten, Fischkuttern sowie Fähr- und Ausflugsschiffen. Die Alte Tonnenhalle war schon früher ein aktiver Teil des Lister Hafenbetriebes und als solcher aus dem Gesamtbild des Hafens nicht wegzudenken.
ICH INTERESSIERE MICH FÜR DIESES ANGEBOT:
Schöne Doppelhaushälfte im Frischwassertal
Meine Kontaktdaten