











































Einfamilienhaus
Art: | Haus |
---|---|
Ort: | Morsum |
Gesamtfläche: | ca. 264 m² |
---|---|
Grundstück: | ca. 1.686 m² |
Zimmer: | 7 |
Energieausweis: | Bedarfsausweis |
---|---|
Endenergiebedarf: | |
Energieträger: | Gas |
Baujahr: | 1780 |
PREIS: | 3.800.000,00 € |
---|
Stilvolles Einfamilienhaus mit Garage, eingebettet in ein traumhaftes Grundstück in Morsum
Dieses ca. 1780 erbaute, historisch bedeutende Haus wurde 2009 umfassend liebevoll saniert. Eine traumhafte Lage unweit vom Wattenmeer und vom Morsumer Golf Club, Ruhe pur – dieses Grundstück in absoluter Bestlage bietet Ihnen eine einmalige Gelegenheit, sich Ihren Wunsch auf Sylt zu erfüllen. Die reetgedeckte weiß geschlämmte Fassade, moderne grau gestrichene Holzsprossenfenster und Türelemente, der Friesengiebel sowie das Reetdach prägen die Außenansicht. Alte Holzdielen verbreiten eine warme Gemütlichkeit, während im übrigen Erdgeschoss Naturstein das Erscheinungsbild bestimmt. Sieben Zimmer verteilen sich großzügig auf drei Ebenen. Dieses Einfamilienhaus vereint sylter Charme mit zeitloser Eleganz. Bereits die Zufahrt und der erste Blick auf das Haus lassen besonderen Eindruck erahnen. Es erwartet Sie auf ca. 264 m² Wohn-/ Nutzfläche ein außergewöhnliches Refugium, Sie werden begeistert sein. Ebenso befindet sich auf dem Grundstück ein Garagenhäuschen.
AUSSTATTUNG
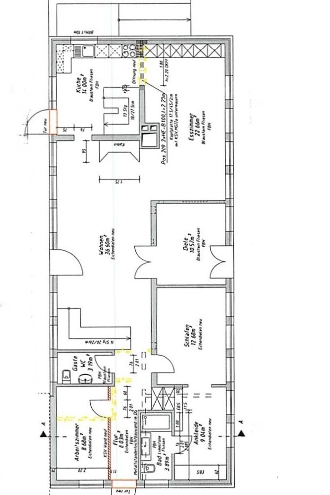
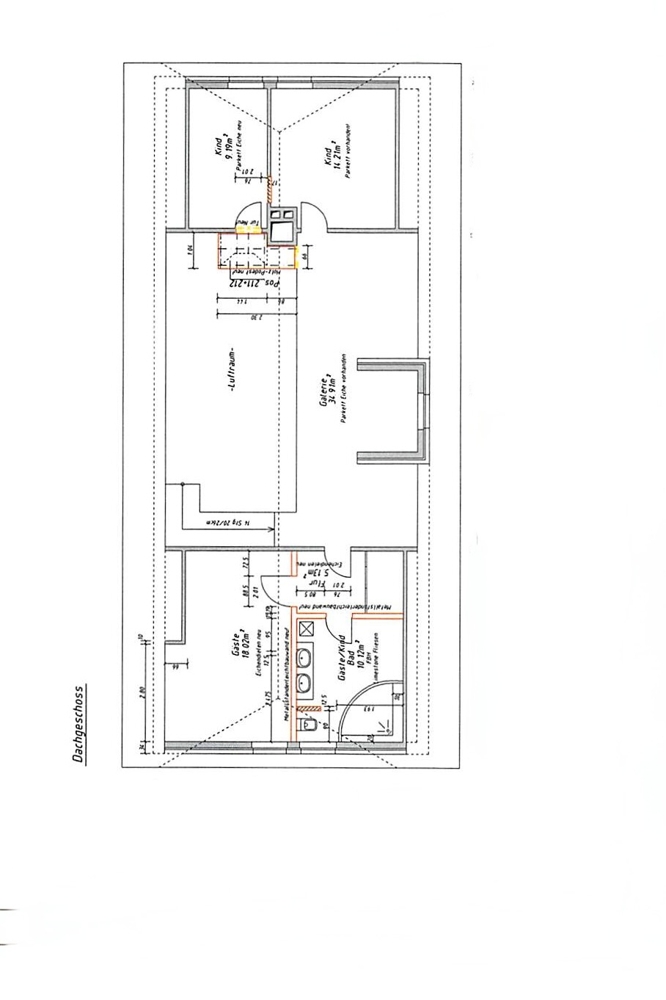
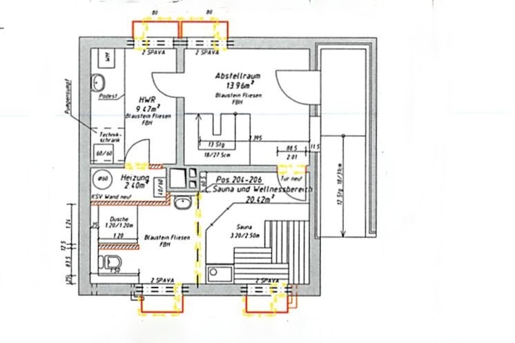
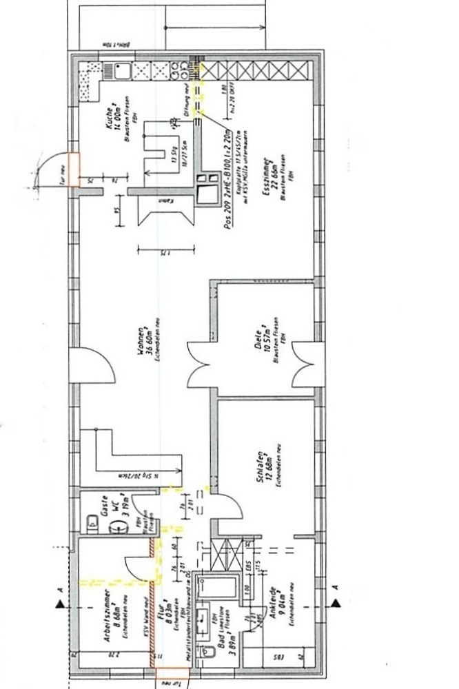
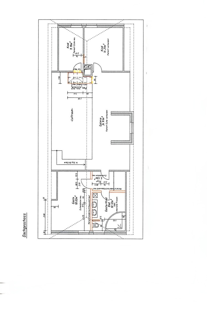
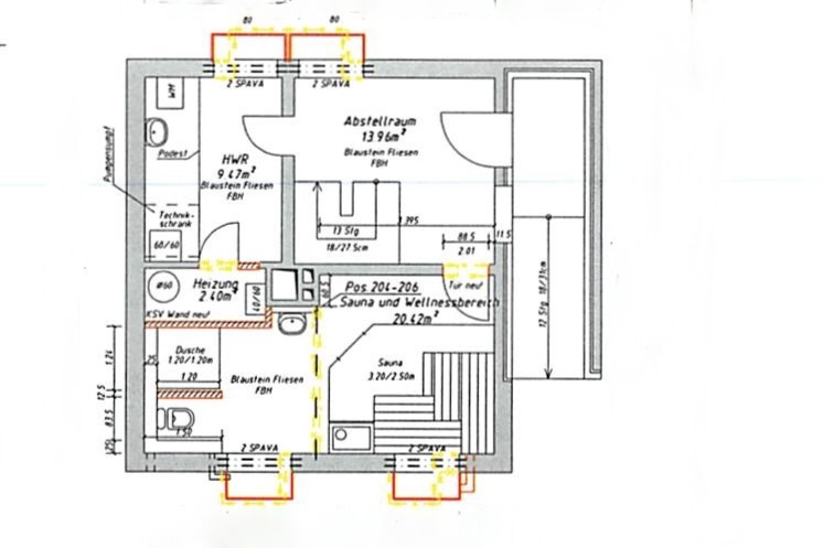
Das Erdgeschoss verfügt über eine großzügige Diele, die ein einladendes Entrée bietet. Von hier erreichen Sie das geschmackvolle Wohnzimmer, das Esszimmer und die separate Küche. Das Herzstück ist der offene Kamin, der eine wohlige Atmosphäre schafft. Das Haus bietet ein lichtdurchflutetes, großzügiges Raumgefühl durch die Galerie. Im Winter taucht die tief stehende Sonne das Haus in warmes, tageslichtdurchflutetes Licht und erzeugt ein faszinierendes Lichtspiel. Die Frühstücksterrasse mit den Klöntüren sind im Sommer ein herrlicher Ort um den Tag zu beginnen. Die vordere Terrasse, die ab dem Vormittag Sonne hat, ist mit einem großen Glatz Sonnenschirm ausgestattet und man kann hier auch noch die Abendsonne genießen. Der große Essbereich ist perfekt für gesellige Runden mit Familie und Freunden in stilvollem Ambiente. Über einen weiteren Flur erreichen Sie das Schlafzimmer mit Ankleide und Bad, das Gäste-WC sowie das Arbeitszimmer. Im Obergeschoss erwarten Sie drei weitere Zimmer sowie ein Bad. Die offene Galerie eröffnet einen eleganten Blick ins Erdgeschoss. Im Untergeschoss befindet sich ein Wellnessbereich mit Sauna zum Entspannen und Erholen, inklusive separatem Ausgang. Ebenso finden Sie auf dieser Etage einen Hauswirtschaftsraum, den Heizungsraum und ein Abstellraum. Die Garage verfügt über eine integrierte Entfeuchtungsanlage, ideal für Oldtimer. Ein stilvolles, einladendes Haus, das beim Betreten sofort fasziniert und ein behagliches Wohlgefühl entfaltet.












































LAGE
Morsum einzigartige Natur und Tradition im äußersten Osten der Insel zeigt sich Sylt von seiner ursprünglichsten Seite. Brauchtum und Tradition sind in Morsum allgegenwärtig und werden aktiv gelebt. Hier ist der friesische Charakter noch am klarsten erkennbar. Von atemberaubender Schönheit ist das Morsum-Kliff, in seinem geologischen Aufbau einzigartig in Europa. Umgeben von grünen Wiesen die sich bis zum Deich oder dem Meer erstrecken, bieten sich viele Gelegenheiten zur Entspannung. Die Heidelandschaft, die das Kliff umgibt lässt den Gedanken freien Lauf, ebenso wie die weiten Wiesen und Felder entlang des Nösse-Deiches. Auch finden Golfbegeisterte ebenfalls Freude – der Golfplatz liegt direkt in der Nähe.
ICH INTERESSIERE MICH FÜR DIESES ANGEBOT:
Stilvolles Einfamilienhaus mit Garage, eingebettet in ein traumhaftes Grundstück in Morsum
Meine Kontaktdaten