



























Etagenwohnung
Art: | Wohnung |
---|---|
Ort: | Wenningstedt |
Gesamtfläche: | ca. 51 m² |
---|---|
Grundstück: | ca. 3.181 m² |
Zimmer: | 3 |
Energieausweis: | Bedarfsausweis |
---|---|
Endenergiebedarf: | |
Energieträger: | Gas |
Baujahr: | 1973 |
PREIS: | 459.000,00 € |
---|
3-Zimmerwohnung mit Weitblick über Wenningstedt
Die Häuser im Risgap 1–5 umfassen eine gepflegte Wohnanlage mit zentrumsnahen Eigentumswohnungen in Wenningstedt. Der weitläufige Weststrand ist in wenigen Gehminuten erreichbar. Einkaufsmöglichkeiten sowie verschiedene Restaurants befinden sich ebenfalls in unmittelbarer Nähe. Zur Wohnung gehört ein eigener PKW-Stellplatz und ein separater Abstellraum.
AUSSTATTUNG
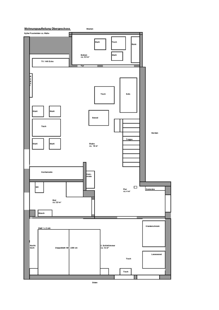
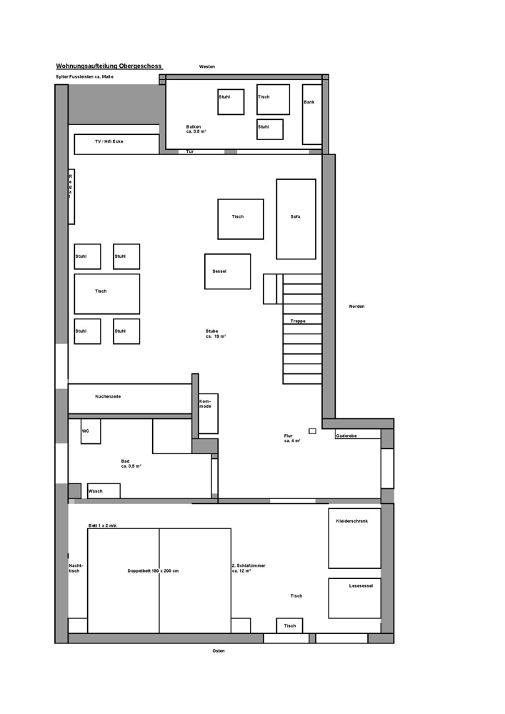
Die Wohnung befindet sich im Obergeschoss der Appartementanlage und liegt in ruhiger Lage mit einem nach Westen ausgerichteten Balkon. Der Wohnraum ist hell und lichtdurchflutet, die integrierte Küchenzeile bietet alle Möglichkeiten zur Zubereitung kleinerer Speisen und Getränke. Auf der Wohnebene befindet sich neben dem Badezimmer ein kleines Schlafzimmer mit Doppelbett. Zusätzlich befindet sich im Dachgeschoss ein weiteres Zimmer, das individuell genutzt werden kann. Die Wohnung wurde umfassend isoliert, um einen effizienten Energieverbrauch zu gewährleisten. Ein besonderes Highlight ist der charmante Meerblick, der sich vom Spitzboden aus eröffnet.




























LAGE
Wenningstedt liegt südlich von Kampen und nördlich von Westerland am Rande einer Dünenlandschaft auf dem Roten Kliff. Unterhalb des Kliffs erstreckt sich ein Sandstrand, der insbesondere im Sommer als bewachter Badestrand die Haupt-Touristenattraktion ist. Das Herzstück von Wenningstedt ist der idyllische Dorfteich mit seiner am Ufer gelegenen Friesenkapelle. Die Kurpromenade mit dem Kursaal verspricht modernes Entertainment für alle Generationen. Der Tourismus in Wenningstedt profitiert von den beiden in unmittelbarer Nachbarschaft gelegenen 18 Loch Golfplätzen. Reiten, Tennis und Wassersport am Weststrand, die Möglichkeiten sind vielfältig und runden das sportliche Freizeitangebot ab. Der beliebte und ausgezeichnete Supermarkt "Feinkost-Meyer" sowie das berühmte Fischrestaurant "Gosch am Kliff" sorgen neben weiteren zahlreichen gehobenen Gastronomiebetrieben für Ihr leibliches Wohl. Seit 1859 ist Wenningstedt Seebad, seit 1960 Nordseeheilbad. Für Ausflüge und Besichtigungen ist man immer nah am Geschehen, nur ein Katzensprung ins mondäne Kampen und ein kurzer Fußmarsch ins Zentrum Westerlands. Heute ist der Urlaubsort vor allem bei Familien sehr beliebt und bietet als Standort für eine Ferienimmobilie eine sehr gute Ausgangsposition.
ICH INTERESSIERE MICH FÜR DIESES ANGEBOT:
3-Zimmerwohnung mit Weitblick über Wenningstedt
Meine Kontaktdaten